国家能源集团煤焦化有限责任公司西来峰硝铵公司修建职工浴池项目、液氨装卸站台整体移位项目、新建液体硝铵罐区项目规划设计方案调整经乌海市海南区国土空间规划委员会2026年第5次会议审议通过,依据《中华人民共和国城乡规划法》的要求,为保障公众利益,维护相关单位及个人的合法权益,现予以公示,公示期7个工作日。
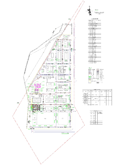
该项目位于乌海海南高新技术产业开发区西来峰产业园,用地面积4226.02平方米,建筑面积1188.60平方米,计容建筑面积4625.17平方米,容积率1.09,基底面积2517.72平方米,建筑密度59.57%。
反馈意见单位:乌海市自然资源局海南分局
联系电话:0473-6976005
联系人:高亚然
乌海市自然资源局海南分局
2026年4月2日




上一条:
下一条: