乌海市应急管理局内蒙古自治区危险化学品应急救援综合基地项目规划设计方案经乌海市海南区国土空间规划委员会2026年第2次会议审议通过,依据《中华人民共和国城乡规划法》的要求,为保障公众利益,维护相关单位及个人的合法权益,现予以公示,公示期7天。
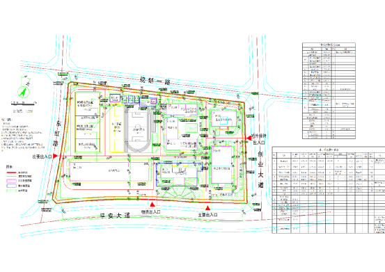
该项目位于乌海海南高新技术产业开发区低碳产业园生活配套服务区,用地面积61748.33平方米,建筑面积35521.85平方米,计容建筑面积32075.28平方米,容积率0.52,建筑密度20.51%,绿地率20%。
反馈意见单位:乌海市自然资源局海南分局
联系电话:0473-6976005
联系人:郝升东
乌海市自然资源局海南分局
2026年2月5日


上一条:
下一条: