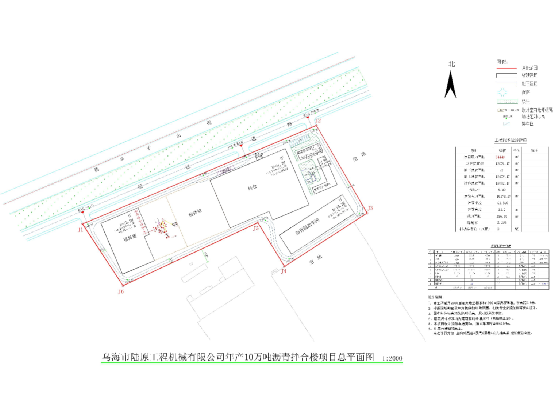
乌海市陆原工程机械有限公司年产10万吨沥青拌合楼项目规划设计方案经乌海市海南区国土空间规划委员会2026年第1次会议审议通过,依据《中华人民共和国城乡规划法》的要求,为保障公众利益,维护相关单位及个人的合法权益,现予以公示,公示期7天。
该项目位于乌海海南高新技术产业开发区西水产业园,用地面积24448平方米,建筑面积10231.17平方米,计容建筑面积19672.17平方米,容积率0.8,建筑密度41.63%,绿地率2.39%。
反馈意见单位:乌海市自然资源局海南分局
联系电话:0473-6976005
联系人:郝升东
乌海市自然资源局海南分局
2026年1月29日


上一条:
下一条: