内蒙古兴发科技有限公司建设的10万吨/年电池级磷酸铁锂项目规划设计方案已经乌达区2026年第一次国土空间规划委员会评审通过。依据《中华人民共和国城乡规划法》的要求,为保障公众利益,维护相关单位及个人的合法权益,现予以公示,公示期五天。
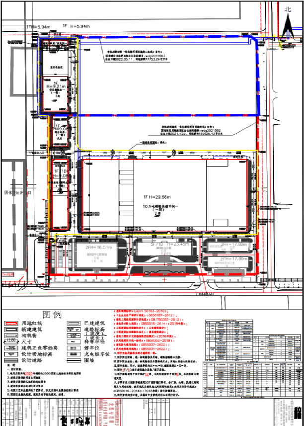
该项目建设地点位于乌海乌达高新技术产业开发区范围内,本次规划设计方案项目用地面积:98044.77平方米,总建筑面积74728.48平方米,计容面积133047.43平方米,容积率1.36,建筑密度66.42%,绿地率10.13%。
反馈意见单位:乌海市自然资源局乌达分局
联系电话:0473-6913054 联系人:盛钰芳
乌海市自然资源局乌达分局
2026年1月22日
附图:
项目平面布置图
:
内蒙古兴发科技有限公司10万吨/年电池级磷酸铁锂项目鸟瞰图:

上一条:
下一条: