乌海华油天然气有限责任公司乌海西来峰LNG工厂管道天然气直接液化技改项目规划设计方案调整经乌海市海南区2025年第13次城市建设专题会审议通过,依据《中华人民共和国城乡规划法》的要求,为保障公众利益,维护相关单位及个人的合法权益,现予以公示,公示期7天。
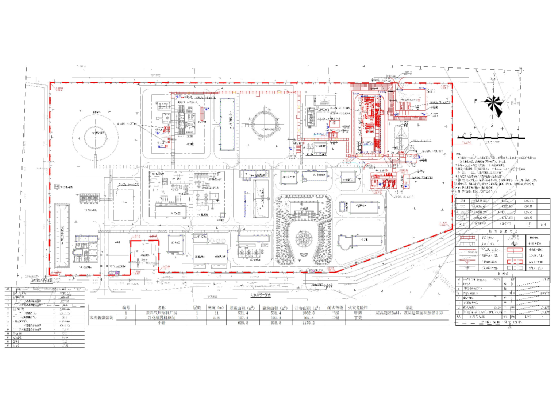
该项目位于海南产业园西来峰项目区,用地面积220463.12平方米,总建筑面积27089.4平方米,本次新建建筑面积638.8平方米,计容建筑面积41649.8平方米,容积率0.19,建筑密度12.29%。
反馈意见单位:乌海市自然资源局海南分局
联系电话:0473-6976005
联系人:郝升东
乌海市自然资源局海南分局
2026年1月15日


上一条:
下一条: