内蒙古乌海亚东精细化工有限公司萘系列产品综合建设项目规划设计方案调整经乌海市海南区2025年第11次城市建设专题会审议通过,依据《中华人民共和国城乡规划法》的要求,为保障公众利益,维护相关单位及个人的合法权益,现予以公示,公示期7天。
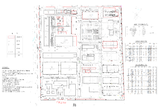
该项目位于海南产业园西来峰项目区,用地面积182373平方米,建筑面积87821.07平方米,计容建筑面积130134.84平方米,容积率0.71,建筑密度39.12%。
反馈意见单位:乌海市自然资源局海南分局
联系电话:0473-6976005
联系人:郝升东
乌海市自然资源局海南分局
2025年12月12日


上一条:
下一条: