无障碍
内蒙古炬洋环保科技有限公司年处理60万吨钙粉废料、30万吨电石渣等固废资源综合利用项目设计方案公示
发布时间:2025年12月09日 作者:信息发布 来源:自然资源 浏览次数:

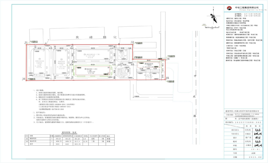
  内蒙古炬洋环保科技有限公司年处理60万吨钙粉废料、30万吨电石渣等固废资源综合利用项目(北地块)规划设计方案已经乌达区2025年第十一次国土空间规划专题办公会评审通过。依据《中华人民共和国城乡规划法》的要求,为保障公众利益,维护相关单位及个人的合法权益,现予以公示,公示期五天。

  该项目建设地点位于乌海高新技术产业开发区乌达产业园内,总建(构)筑物面积1513平方米,计容面积:2571.75平方米,其中,辅助用房建筑面积454.25平方米、计容面积454.25平方米,成品库房建筑面积1058.75平方米,计容面积2117.5平方米。

  联系电话:0473-6922772  联系人:盛钰芳

  乌海市自然资源局乌达分局

  2025年12月9日


  项目平面布置图

  鸟瞰图

  鸟瞰图

打印 关闭

上一条:

下一条: