内蒙古宜化化工有限公司二氯乙烷资源化利用研发项目规划设计方案已经乌达区2025年第十一次国土空间规划专题会评审通过。依据《中华人民共和国城乡规划法》的要求,为保障公众利益,维护相关单位及个人的合法权益,现予以公示,公示期五天。
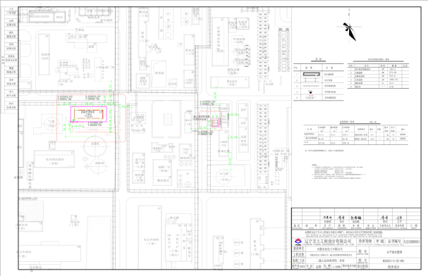
该项目建设地点位于乌海高新技术产业开发区乌达产业园,内蒙古宜化化工有限公司厂区内。二氯乙烷资源化利用研发项目总建筑面积:512.6平方米,计容面积:1087.59平方米,其中
建筑物新建甲类库房建筑面积512.6平方米、计容面积1025.2平方米,构筑物二氯乙烷回收装置计容面积62.39平方米。
反馈意见单位:乌海市自然资源局乌达分局
联系人:盛钰芳 电话:0473-6922772
附图:二氯乙烷资源化利用研发项目
平面图
鸟瞰图

上一条:
下一条: