内蒙古宜化化工有限公司液氯储槽及配套设施升级改造项目规划设计方案已经乌达区2025年第十一次国土空间规划专题会评审通过。依据《中华人民共和国城乡规划法》的要求,为保障公众利益,维护相关单位及个人的合法权益,现予以公示,公示期五天。
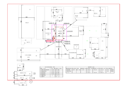
该项目建设地点位于乌海高新技术产业开发区乌达产业园,内蒙古宜化化工有限公司厂区内。液氯储槽及配套设施升级改造项目总建筑面积:572.99平方米,计容面积:1238.38平方米,其中建筑物液氯装置建筑面积572.99平方米、计容面积1145.98平方米,构筑物装置内管廊计容面积92.4平方米。
反馈意见单位:乌海市自然资源局乌达分局
联系人:盛钰芳 电话:0473-6922772
附图:液氯储槽及配套设施升级改造项目
平面图

鸟瞰图

上一条:
下一条: