由内蒙古兴发科技有限公司建设的新建3万吨/年焦磷酸钠生产装置规划设计方案已经乌达区2025年第十一次国土空间规划专题会评审通过。依据《中华人民共和国城乡规划法》的要求,为保障公众利益,维护相关单位及个人的合法权益,现予以公示,公示期五天。
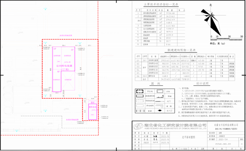
该项目建设地点位于乌海市乌达产业园区内蒙古兴发科技有限公司原有厂区范围内,总建(构)筑总面积5729.74平方米,其中建筑物定向转化装置4457.83平方米(定向转化装置A、B、C区),构筑物定向转化装置D区803.91平方米,构筑物循环水站468平方米。
反馈意见单位:乌海市自然资源局乌达分局
联系电话:0473-6922772 联系人:盛钰芳
附图:
项目平面布置图:

内蒙古兴发科技有限公司3万吨/年焦磷酸钠生产装置鸟瞰图:

上一条:
下一条: