内蒙古和利化学纤维(集团)有限公司年产20万吨PAN基原丝和10万吨PAN基高端碳纤维建设项目规划设计方案调整经乌海市海南区2025年第10次城市建设专题会审议通过,依据《中华人民共和国城乡规划法》的要求,为保障公众利益,维护相关单位及个人的合法权益,现予以公示,公示期7天。
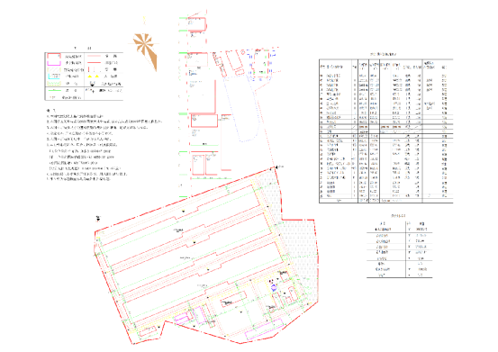
该项目位于乌海市海南区西来峰工业园,用地面积261528.47平方米,建筑面积101703.03平方米,计容建筑面积179590.05平方米,容积率0.69,建筑密度42.26%,绿地率7.03%。
反馈意见单位:乌海市自然资源局海南分局
联系电话:0473-6976005
联系人:郝升东
乌海市自然资源局海南分局
2025年11月10日



本次调整
内容
上一条:
下一条: