内蒙古交通集团有限公司G1816荣乌高速公路乌海至玛沁联络线乌海巴音陶亥至石嘴山惠农段工程规划设计方案经乌海市海南区2025年第10次城市建设专题会审议通过,依据《中华人民共和国城乡规划法》的要求,为保障公众利益,维护相关单位及个人的合法权益,现予以公示,公示期7天,该项目位于乌海市海南区巴音陶亥镇。
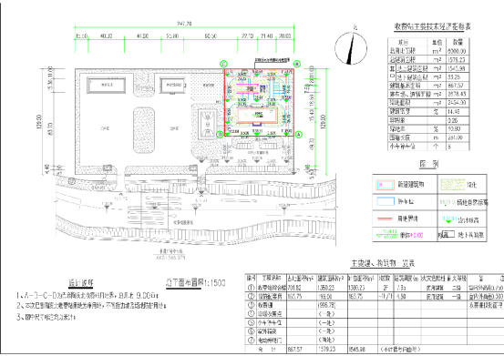
收费站项目用地面积6000平方米,建筑面积1579.23平方米,容积率0.26,建筑密度14.46%,绿地率40.9%。
收费站项目用地面积6000平方米,建筑面积1579.23平方米,容积率0.26,建筑密度14.46%,绿地率40.9%。
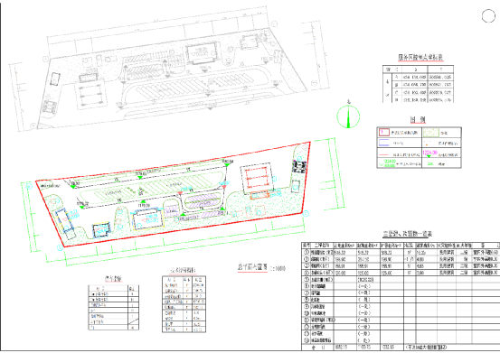
服务区北区项目用地面积20000平方米,建筑面积833.04平方米,容积率0.04,建筑密度4.14%,绿地率32.45%。
服务区南区项目用地面积20000平方米,建筑面积1100.73平方米,容积率0.06,建筑密度5.16%,绿地率32.29%。
养护工区项目用地面积23666.79平方米,建筑面积1078.32平方米,容积率0.05,建筑密度4.56%,绿地率35.26%。
反馈意见单位:乌海市自然资源局海南分局
联系电话:0473-6976005
联系人:郝升东
乌海市自然资源局海南分局
2025年11月6日
收费站项目平面图、鸟瞰图:


服务区北区项目平面图、鸟瞰图:


服务区南区项目平面图、鸟瞰图:


养护工区项目平面图、鸟瞰图:


上一条:
下一条: