乌海高新技术产业开发区低碳产业园化工安全技能实训基地项目规划设计方案,经乌海高新技术产业开发区规划建设专题会议2025年第一次会议([2025]1号)通过。依据《中华人民共和国城乡规划法》的要求,为保障公众利益,维护相关单位及个人的合法权益,现予以公示,公示期七个工作日。
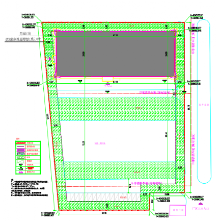
该项目位于:乌海高新技术产业开发区低碳产业园西环路西、河槽南(工业净水厂南侧),用地面积:7931.46平方米,总建筑面积:1756.4平方米(无地下),建筑高度7.9m,建筑层数:地上一层,土地用途:其他教育用地,停车位:16个,容积率:0.22,建筑密度:22%,绿地率:35%。
反馈单位:乌海市自然资源局低碳产业园区分局
联系电话:0473-8992745
联系人:王雪梅
总平面图

效果图

上一条:
下一条: