乌海高新技术开发区内蒙古黑猫碳材料科技有限公司8万吨/年碳基材料一体化项目规划设计方案,经乌海高新技术产业开发区规划建设专题会议2025年第一次会议(【2025】1号)通过。依据《中华人民共和国城乡规划法》的要求,为保障公众利益,维护相关单位及个人的合法权益,现予以公示,公示期七个工作日。
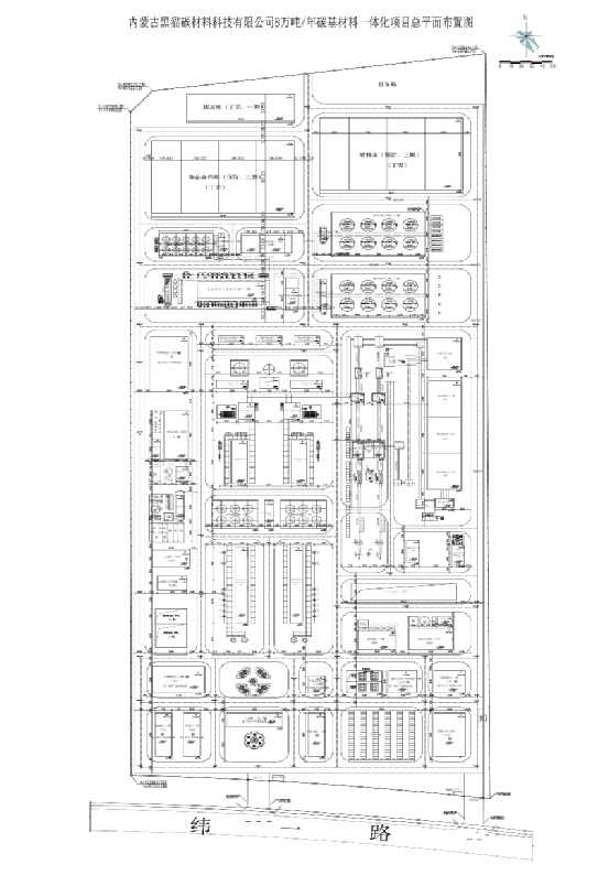
该项目位于:乌海高新技术产业开发区纬一路北、都思兔三队沟东,用地面积:266668.01平方米,总建筑面积:81342.41平方米,计容建筑面积:187512.01平方米,容积率:0.7,建筑密度:41%,绿地率:12.5%。
具体内容请登录乌海市自然资源局网站查询或到该项目建设现场查看。
反馈单位:乌海市自然资源局低碳产业园区分局
联系电话:0473-8992745
联系人:王雪梅
鸟瞰图

总平面图
上一条:
下一条: