无障碍
乌海市晟昊环保新材料有限公司八万吨煤化副产品深加工项目规划设计方案公示
发布时间:2025年01月21日 作者:信息发布 来源:自然资源 浏览次数:

  依据《中华人民共和国城乡规划法》的要求和海南区政府城市建设专项会议的决议,为保障公众利益,维护相关单位及个人的合法权益,现将乌海市晟昊环保新材料有限公司八万吨煤化副产品深加工项目规划设计方案予以公示,公示期七天。

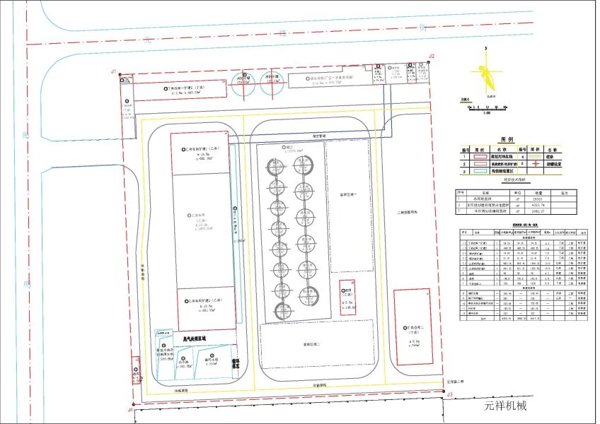
  该项目位于海南产业园西来峰项目区。总用地面积29000平方米、本次新建(包括原有厂房扩建)建筑面积2960.37平方米

  联系电话:0473-6976005

  联系人:王维廷

晟昊环保平面图

晟昊效果图

  乌海市自然资源局海南分局

  2025年1月21日

打印 关闭

上一条:

下一条: