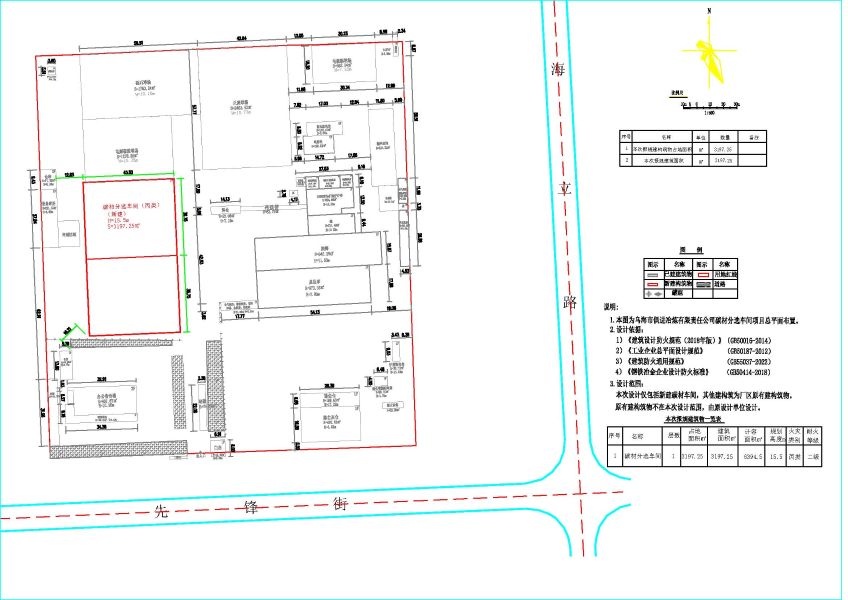
乌海市俱进冶炼有限责任公司碳材分选车间项目规划设计方案公示
发布时间:2025年01月21日
作者:信息发布
来源:自然资源
浏览次数:
依据《中华人民共和国城乡规划法》的要求和海南区政府城市建设专项会议的决议,为保障公众利益,维护相关单位及个人的合法权益,现将乌海市俱进冶炼有限责任公司碳材分选车间项目规划设计方案予以公示,公示期七天。
该项目位于海南产业园西来峰项目区。总用地面积33881.44平方米、建筑面积3197.25平方米。
联系电话:0473-6976005
联系人:王维廷


乌海市自然资源局海南分局
2025年1月21日