依据《中华人民共和国城乡规划法》的要求和海南区政府城市建设专项会议的决议,为保障公众利益,维护相关单位及个人的合法权益,现将内蒙古晴利水泥制品有限公司混凝土产业基地建设项目规划设计方案予以公示,公示期七天。
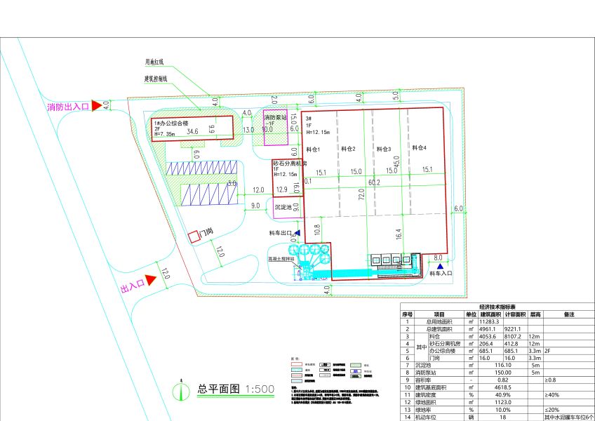
该项目位于海南区海拉路高速公路出口三十二公里处。总用地面积11283.3平方米、总建筑面积4961.1平方米、计容面积9221.1平方米、容积率0.82、建筑密度40.9%、绿地率10%。
联系电话:0473-6976005
联系人:王维廷


乌海市自然资源局海南分局
2025年1月20日
上一条:
下一条: