无障碍
10万吨/年BDO废液资源化利用生产3.5吨THF和年产10万吨NMP项目建设工程规划调整方案公示
发布时间:2023年08月29日 作者: 来源:自然资源 浏览次数:

  内蒙古杰特绿能科技有限公司开发建设的10万吨/年BDO废液资源化利用生产3.5吨THF和年产10万吨NMP项目,建设工程规划调整方案已经乌海市乌达区人民政府2023年第八次国土空间规划专题办公会会议评审通过。依据《中华人民共和国城乡规划法》,为保障公众利益,维护相关单位及个人的合法权益,现予以公示,公示期五天。 

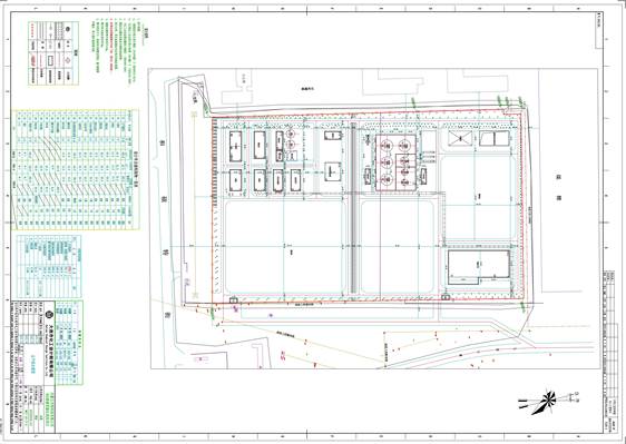
  详见附图、附表。 

  反馈意见单位:乌海市自然资源局乌达分局 

  联系电话:0473-6913054 12345 

  联系人:程睿明 

  项目名称 

  10万吨/BDO废液资源化利用生产3.5THF和年产10万吨NMP项目 

  建设单位 

  内蒙古杰特绿能科技有限公司 

  建设位置 

  乌海市乌达区 

  规划指标 

  项目 

  调整前 

  调整后 

  厂区用地面积 

  107539.79 

  107539.79 

  建筑物、构筑物占地面积 

  40704.06 

  26705.39 

  建筑物建筑面积 

  33742.54 

  6683.00 

  计容用建筑面积 

  58998.73 

  66542.84 

  生产办公区用地面积 

  9063.148 

  6000 

  露天堆场及操作场地面积 

  14726.59 

  28095.63 

  厂区道路用地面积 

  35047.06 

  15357.88 

  工厂容积率 

  0.54 

  0.61 

  围墙长度 

  1394.1m 

  1353.76m 

  厂区绿化用地面积 

  23640.91 

  10824.37 

  建筑系数 

  47% 

  59.84% 

  厂区利用系数 

  77% 

  74.12% 

  厂区绿地率 

  20% 

  10.06% 

  oldsrc=W020230828680831518533.jpg 

  调整前鸟瞰图 

  oldsrc=W020230828680831525728.jpg 

  调整前总平图 

  oldsrc=W020230828680831530654.png 

  调整后鸟瞰图 

  oldsrc=W020230828680831530668.png 

  调整后总平图 

打印 关闭

上一条:

下一条: