无障碍
京海电厂水源地升压泵站项目规划设计方案补办公示
发布时间:2023年12月06日 作者: 来源:自然资源 浏览次数:

  由内蒙古京海煤矸石发电有限责任公司建设的京海电厂水源地升压泵站项目于乌海市海勃湾区人民政府区长办公会议纪要[2018]28号通过,依据《关于城乡规划公开公示的规定》的要求,为保障公众利益,维护相关单位及个人的合法权益,现予以公示,公示期为七天。 

  

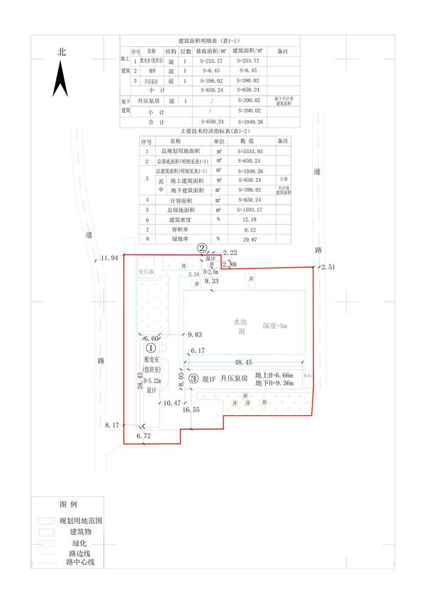
总用地面积 

  5333.93 

  总建筑面积 

  1040.26 

  建筑密度 

  12.19% 

  绿地率 

  29.87% 

  容积率 

  0.12 

  反馈意见单位:乌海市自然资源局海勃湾分局 

  联系电话:0473-6995512 

  联系人:贺倩 

  附图: 

  立面图oldsrc=W020231206658517485417.jpg 

  oldsrc=W020231206658517497897.jpg 

  oldsrc=W020231206658517498963.jpg鸟瞰图 

  oldsrc=W020231206658517492610.jpg 

  平面图 

  oldsrc=W020231206658517500928.jpg 

打印 关闭

上一条:

下一条: