无障碍
摩尔沟CNG、LNG、L-CNG加油加气站项目规划设计方案公示
发布时间:2022年12月08日 作者: 来源:自然资源 浏览次数:

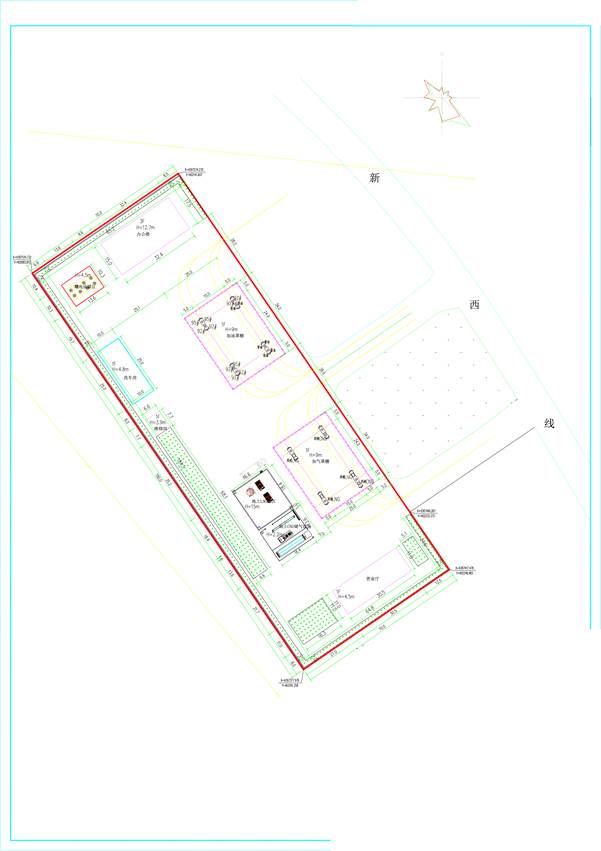
  由内蒙古榕诚能源开发建设的位于乌海市海勃湾区千里山镇小型加工园区南摩尔沟CNG、LNG、L-CNG加油加气站项目设计方案于2022年海勃湾区第八次城市规划建设区长专题办公会议通过,依据《关于城乡规划公开公示的规定》的要求,为保障公众利益,维护相关单位及个人的合法权益,现予以公示,公示期为七天。 

  

  总用地面积 

  13300 

  总建筑面积 

  2944.32 

  建筑密度 

  26.25% 

  绿地率 

  10.8% 

  容积率 

  0.36 

  反馈意见单位:乌海市自然资源局海勃湾分局 

  联系电话:0473-6992089 12345 

  联系人:罗腾飞 

  附图: 

  立面图 

  oldsrc=W020221208587914851503.jpg 

  oldsrc=W020221208587914866530.jpg 

  平面图 

  

  oldsrc=W020221208587914860412.jpg 

打印 关闭

上一条:

下一条: