无障碍
乌海市海勃湾区甘德尔街南、建设路西政府棚改项目规划设计方案公示
发布时间:2022年03月15日 作者: 来源:自然资源 浏览次数:

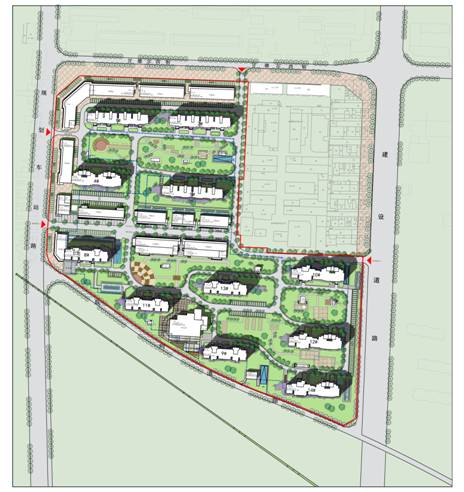
  乌海市海勃湾区甘德尔街南、建设南路西政府棚改(京海城·家泰)项目设计方案经第九次评审会会议通过。依据《中华人民共和国城乡规划法》的要求,为保障公众利益,维护相关单位及个人的合法权益,现予以公示,公示期十五天。 

  建设位置: 

  甘德尔街南、建设南路西 

  用地面积: 

  91209.8 

  建筑面积: 

  313837 

  容积率: 

  2.75 

  地上总建筑面积: 

  251153 

  绿地率: 

  35% 

  地下总建筑面积: 

  62684 

  建筑密度: 

  20.9% 

  规划户数: 

  2120 

  机动车停车位: 

  2300 

  物业 

  1200 

  非机动车位: 

  2690 

  社区活动中心 

  1175 

  公厕 

  183 

  蔬菜直营店 

  150.23 

  技防警卫 

  70.38 

  垃圾回收站 

  104 

  换热站 

  294 

  幼儿园 

  2713 

  社区卫生中心 

  107 

  反馈意见单位:乌海市自然资源局海勃湾分局 

  联系电话:0473-6992055 12345 

  联系人:高一平 

  附图(见背面): 

  鸟瞰图 

  complete=complete 

  平面图 

  complete=complete 

打印 关闭

上一条:

下一条: