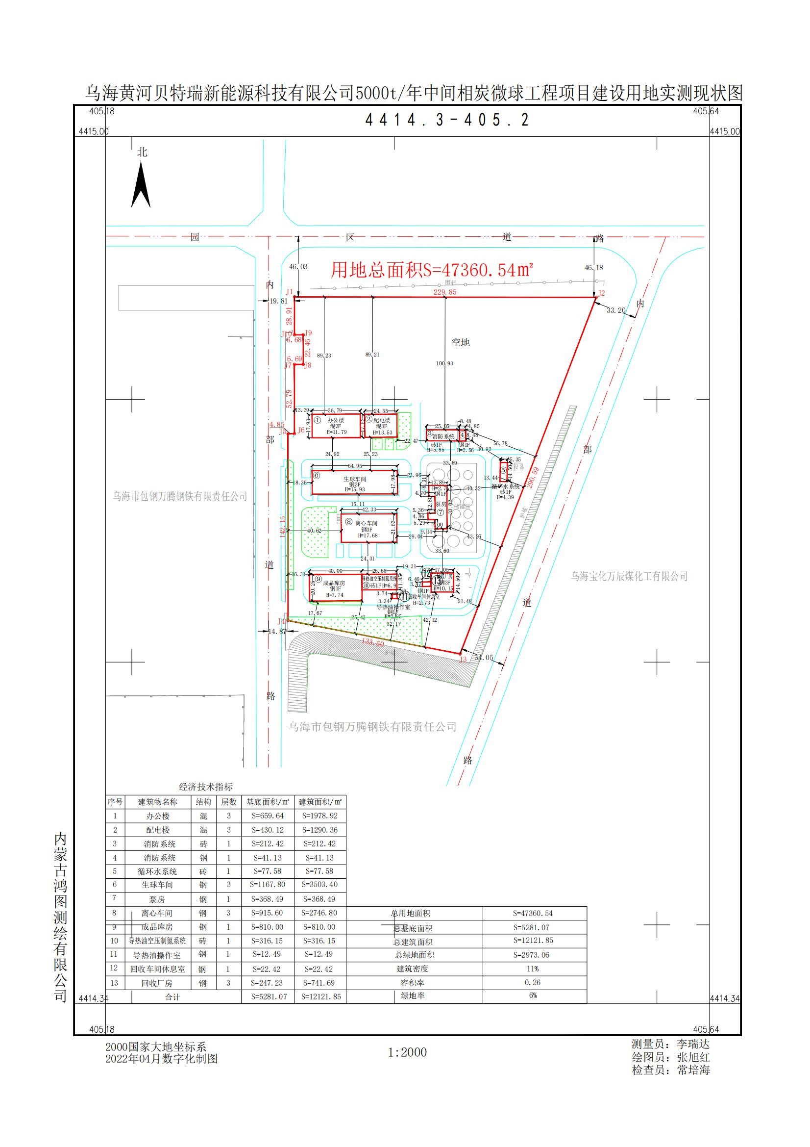
由乌海黄河贝特瑞新能源科技有限公司建设的“5000T/年中间相炭微球工程”项目方案于2022年海勃湾区第五次城市规划建设区长专题办公会会议通过,依据《关于城乡规划公开公示的规定》的要求,为保障公众利益,维护相关单位及个人的合法权益,现予以公示,公示期为七天。
|
|
内 容 |
备注 |
| 建设位置 |
海勃湾区千里山工业园区内 |
|
| 总用地面积 |
47360.54㎡ |
|
| 总建筑面积 |
12121.85㎡ |
|
| 建筑系数 |
11% |
|
| 容积率 |
0.26 |
|
反馈意见单位:乌海市自然资源局海勃湾分局
联系电话:0473-6992055 12345
联系人:罗腾飞

上一条:
下一条: